


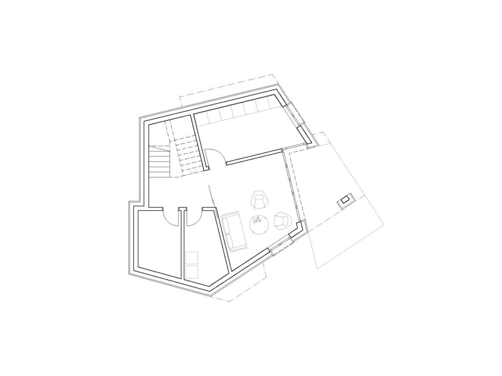
Zweifamilienhaus- Matten
Studie
Mai 2026



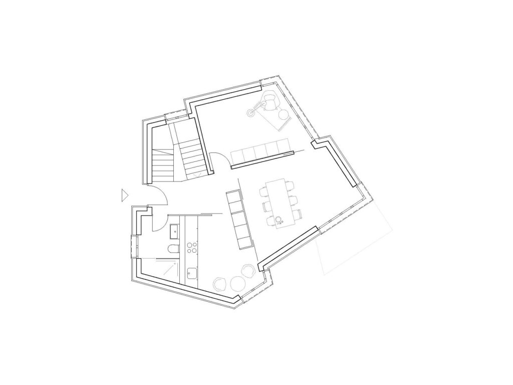
Rössli – Altwis
Gestaltungskommission - Studie Schritt 1
März 2026

Gritzimos
Baueingabe - Fassadenpläne
Februar 2026

«einmal neues kleid»
Januar 2026

«frohe festtage»
Dezember 2025

Hotel Palace
Eingabe Fondue-Pavilion
Dezember 2025


Haus Dattenbergrain
Fenster & Storenersatz - ausgeführt
November 2025



Haus ROSA
Baueingabe - eingereicht
September 2025

«hoher bürobesuch»
August 2025

«zwei jahre HaDeDo»
Juli 2025






Stadtvilla
Studie
April 2025

Haus Boulaguiem
Sanierung Fassade - ausgeführt
April 2025

Haus Dattenbergrain
Einbau Nasszelle - ausgeführt
Februar 2025

Haus ROSA
Neubau Mehrfamilienhaus - weiter geht's!
Dezember 2024

«frohe festtage»
Dezember 2024


Haus Sternhalde
Aufstockung - Machbarkeitsstudie
November 2024


Haus Vrangala
Baueingabe - eingereicht
November 2024

Haus Dattenbergrain
Einbau Nasszelle - in Bearbeitung
Oktober 2024

Haus Boulaguiem
Sanierung Fassade - in Bearbeitung
September 2024



Garage Zosso
Sanierung Garage - ausgeführt
September 2024

«fatto in casa»
September 2024

Haus ROSA
Neubau Mehrfamilienhaus - Machbarkeitsstudie
April 2024

«kaffeepause»
Februar 2024

«frohe festtage»
Dezember 2023

«wir schreiben uns an»
September 2023



Maschinenhalle
Richtprojekt - erstellt
August 2023


Schreinerei
Lifteinbau – Studie
Juli 2023

«wir starten»
Juli 2023


Haus Mühlematt
Umbau Nasszelle - ausgeführt
März 2022


































